海口华侨城曦海岸-项目最新情报/图文解析/楼盘详情户型图+交通+商圈配套
扫描到手机,新闻随时看
扫一扫,用手机看文章
更加方便分享给朋友
089866736888
✅五源河文体中心旁
✅6⃣0⃣万方文旅居住社区
▶开发商:海南华侨城实业有限公司
▶海口曦海岸作为华侨城集团在海口打造的60万方文旅居住社区
▶涵盖创办空间、大型商业集群、独立商业、住宅等多元业态
▶建筑面积约65-204㎡优跃空间、1.3-1.6万㎡整售商办
‼满足不同客户的多种需求‼
………………………………………………
『项目区位图』

『项目鸟瞰图』

【散售楼栋】
▶一期15-17号楼,共计264套,建筑面积约65-204㎡
▶层高5.4米
【整栋销售】
▶二期(1号地块)1-3号楼整售商办,建筑面积约1.3-1.6万㎡
▶1-2层为商业,3-14层为办公
▶层高:办公5.4米,商业4.3-5.4米
【装修状态】毛坯
【物业公司】华侨城物业(集团)有限公司
『商办鸟瞰图&外立面效果图』


‼解锁1⃣2⃣大卖点,共享商机‼
1⃣海口政商汇聚,活力生态之城
市政府、国际免税城、会展中心、星级酒店群等资源配套富集,构筑优渥营商环境

2⃣一路之隔五源河文体中心,近享稳定人潮
体育赛事、明星演唱会扎堆,聚焦人气,近享文体经济商机

3⃣800米共享海口商务办公圈
西海岸国际互联网总部基地、中海油总部基地等近200家企业高阶人群汇聚,高阶商务菁英云集

4⃣扼守城市主干道,便捷交通枢纽
约600米即达海秀快速路长滨路匝口,为生活提速

5⃣步行即达千亩西秀公园,悦享绿色有氧生活
6⃣60万㎡文旅居住社区,配套一应俱全
聚焦2000多户业主,依托自身商业集群,营造高质营商环境

7⃣大幅玻璃幕墙,城市级会客厅
全玻璃幕墙时尚风格立面,体现品质商务形象,彰显品牌形象

8⃣约5.4米层高设计,丰富人生更多想象
建筑面积约65-204㎡优跃空间,多面积段选择

9⃣尊享全明宽阔空间,采光通风俱佳
大部分产品三面采光,奢阔视野,同时拥有约12-16米大面宽,空间舒畅

1⃣0⃣宜商宜办公,实现一房多用
产品双钥匙或多钥匙变通,实现一房多用,自用出租两相宜
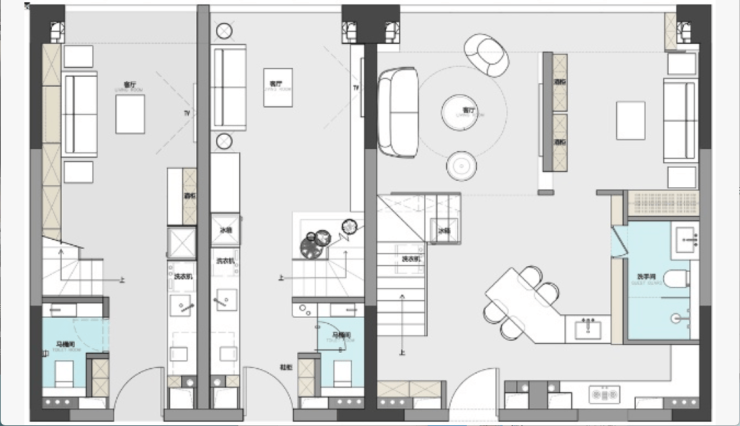
↓原户型示意图↓

1⃣1⃣30余载丰富积淀,OCAT文创基因落子海南
华侨城三十余载央企品牌实力,汲取OCAT当代艺术中心独特气质,打造文创艺术气息的优跃空间

1⃣2⃣国家一级资质物业,丰富运营管理经验
华管家物业26年时光沉淀,国际品牌物业团队,深圳物业管理标准,24小时服务

『一期户型平面鉴赏』
【15#/17#楼】建筑面积约81.36-204.73㎡

【16#楼】建筑面积约64.55-172.52㎡

『二期(1号地块)户型平面鉴赏』
1#楼:整栋销售-建筑面积约13655.16㎡

2#楼:整栋销售-建筑面积约16377.44㎡

3#楼:整栋销售-建筑面积约13403.44㎡

声明:本文由入驻焦点开放平台的作者撰写,除焦点官方账号外,观点仅代表作者本人,不代表焦点立场。
