万宁【石梅春墅】开发商首页➢官方售楼处营销中心电话➢2026房价➢户型➢学区➢楼盘详情最新动态➢官网首页发布
扫描到手机,新闻随时看
扫一扫,用手机看文章
更加方便分享给朋友
089888868816
示范区的使命,就是唤起传统村落记忆,体验海南琼北村落风情。
来到这里首先映入眼帘的,是一个牌坊,然后穿过一派自然田野风光和高尔夫球场,踏过多重转折的小径,抵达大榕树广场。
斑驳叶影摇动之间,迎接从高压的现代城市中回归的“游子”。至此,卸下满心的压力,享受乡村的慢生活。
示范区通过食、游、闲、聚、康的活动,提供定制化旅游度假体验,抱朴守真,享受自然、阳光,让身心慢下来。
大榕树广场两侧会所、销售中心都围绕水庭院布局,水光荡漾之间,打造一条归心之旅。水系边设计无边泳池,提升首开区的生活场景感和品质感。
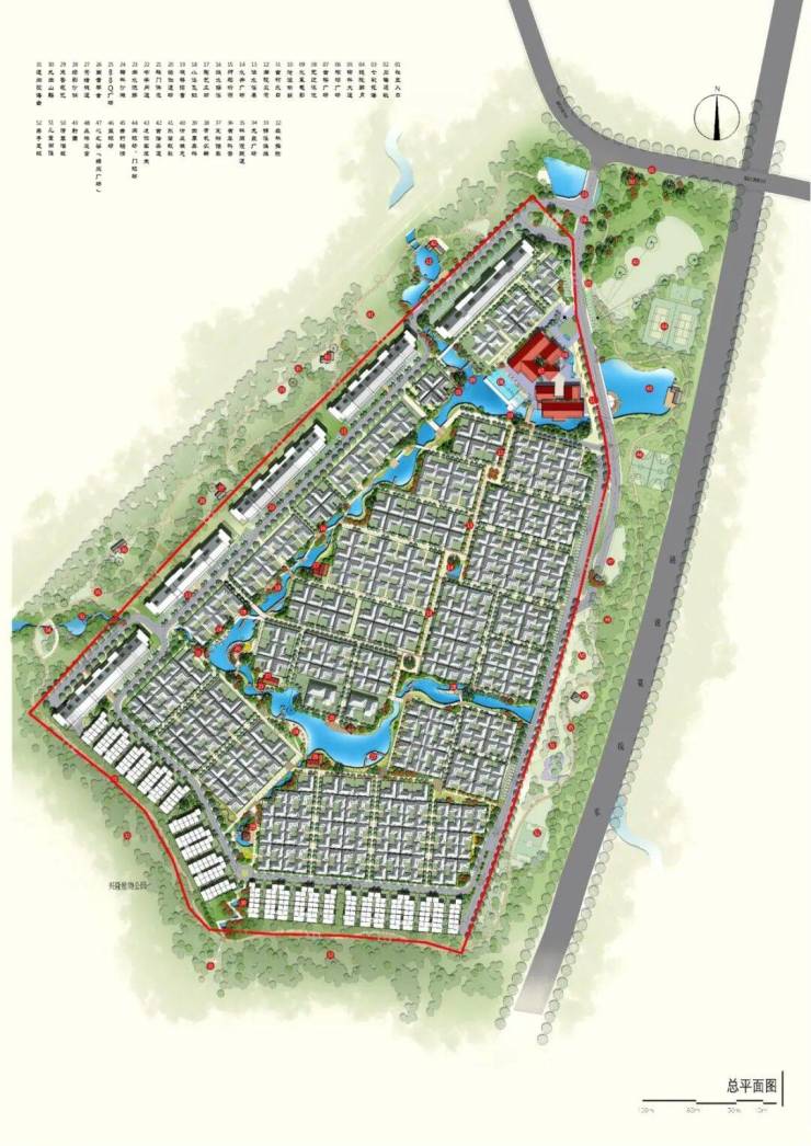
◎总平图
项目位于海南省万宁市石梅湾,此处丘陵起伏,山泉溪流,生态湿地,椰林湖岸,拥有绝佳的生态自然环境资源。规划三个层次层层递进,重点在于公共空间的营造。

第一层次,外环生态空间。利用基地和城市道路之间的用地打造生态景观园区,隔绝城市喧嚣,在此区域内,农作、慢跑、瑜伽,乐享热带阳光沙滩,感受本土的风土人情,成为慢生活场景的第一层次。
第二层次,慢调水岸空间。场地内水系空间的营造尽可能顺应基地原始水系,蜿蜒曲折、整体线性展开。各个空间形态采用点、线、面结合,丰富多样,成为场地内主要景观公共空间带。沿水体展开一系列体验丰富的公共休闲活动,营造慢调水岸生活。
第三层次,聚落组团空间。借鉴中国传统村落空间,在聚落组团内形成广场——街——巷——院落空间。尺度宜人,生活感强,成为第三层次的公共空间。
规划布局上聚落分布、大疏大密。利用自然地形,院落层层叠叠,楼院重接,台梯相连。建筑形体与山地自然植被、山石和水流等融合,二者相互渗透,相互依托。
产品采用琼北典型院落结构,回归传统生活哲学,围绕院落展开“家”文化。呈现优雅生活方式,抱朴守真,营造“场所感”。
U型院落三面院墙,向外封闭,向内开敞,檐廊形成的灰空间,可遮阳挡雨。适宜通行、聚会、接触自然,很好地解决了联排别墅的私密性问题,同时又具有独栋别墅的感觉。
海南的天气,潮湿、炎热、多雨。应对此不利条件,HMD将首层设置架空、廊下度假休闲空间,创造可遮阴避雨的休憩纳凉场所;形成开放式中庭,空间开敞,将街、巷自然风导入中庭;增加边院,与中庭形成空气对流,改善户内小气候,创造舒适、休闲、更宜人的度假体验。
根据市场需求,设计了小独栋、大独栋、合院三种别墅产品,和叠院公寓。
◎小独栋
◎大独栋
◎合院
◎叠院公寓
海南现有建筑多为东南亚风格,缺乏传统地域特色;我们希望打造兼具热带风情和海南风味的建筑风格。
HMD从海南传统村落、街巷、庭院、水口、村头树汲取灵感,将灰色和红色的火山石,和梨花木、椰子树等海南当地木材用于院墙、栏杆、百叶、纳凉亭等,体现传统建筑文化肌理;同时采用坡度缓和的大屋顶大挑檐,体块悬空、大面积开窗的手法,打造通透开敞的空间,令建筑与自然融合。
特色海南风情规划,接地气的小院产品,这就是石梅春墅的故事。
欢迎来海南小院子做客,泡杯清茶,看看椰林树影,水清沙幼。
工程档案
项目名称:石梅春墅
项目甲方:万宁万都实业发展有限公司
设计机构:HMD汉米敦
服务范围:规划、建筑设计
项目主创:钟伟豪
设计团队:秦倩、谢嫦娥、陆良洁、王晶
绿建及海绵顾问:深圳万都时代绿色建筑技术有限公司
总建筑面积:142137.89 ㎡
设计时间:2017
实景照:刘啸
声明:本文由入驻焦点开放平台的作者撰写,除焦点官方账号外,观点仅代表作者本人,不代表焦点立场。
