三亚海棠墅国际度假康养中心售楼处位置电话→最新优惠→更新动态→2025房价→户型→配套→营销中心发布
扫描到手机,新闻随时看
扫一扫,用手机看文章
更加方便分享给朋友
089888868816
🌳海棠墅✨一期现房丨独栋B/叠拼C

【项目概况】
开发商:四川宏凌集团
占地面积:249亩
建筑面积:约99000㎡
容积率:一期0.6
绿地率:40%
楼栋户数:独栋101户(一期)、洋房180户
物业:绿城服务
物业费:一期洋房6元/平/月;一期独栋11.8元/平/月
项目地址:海南·三亚市·海棠区·灯潭路(301医院对面)

【区域】
•距离亚龙湾高铁站约16公里
•距离三亚市中心约28公里
•距离凤凰机场约35公里
•海棠湾高铁站(规划中)4.2公里
•距离林旺镇生活菜市场超市2公里
•距离301医院300米
•距离三亚国际免税城10公里
•距离人大附中5公里

【产品介绍】
【一期现房独栋合院】即买即住
B户型:建面79平米 占地202平
花园64平 房屋138 平 三室两厅两卫
纯地上一层,独门独院,中式建筑风格,海棠湾稀缺小合院别墅

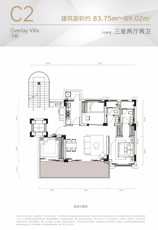
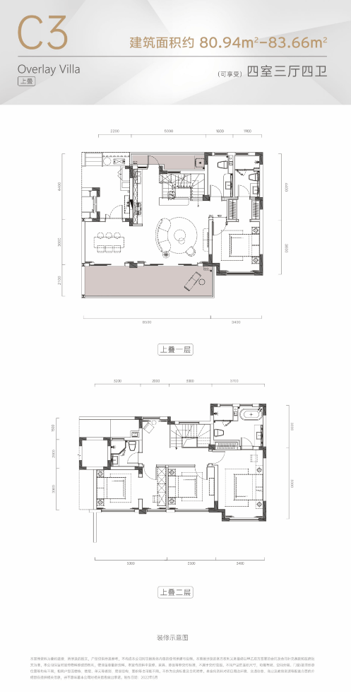
【一期洋房 C户型鉴赏】
C1户型:一楼93平 三室两厅两卫 带前后双花园 前65平 后35平
C2户型:二楼86平 三室两厅两卫
C3户型:三楼83平 买三楼送四楼阁楼 实得160平 四室三厅四卫

叠拼C样板间实景图赏析:



【一期洋房 C户型鉴赏】
C1户型:一楼93平 三室两厅两卫 带前后双花园 前65平 后35平
C2户型:二楼86平 三室两厅两卫
C3户型:三楼83平 买三楼送四楼阁楼 实得160平 四室三厅四卫




声明:本文由入驻焦点开放平台的作者撰写,除焦点官方账号外,观点仅代表作者本人,不代表焦点立场。
