珠海观宸246售楼处位置电话→最新优惠→更新动态→2025房价→户型→配套→@2025.11.26售楼处发布
扫描到手机,新闻随时看
扫一扫,用手机看文章
更加方便分享给朋友
07565228888

✨【观宸246】✨
拱北口岸头排 精奢高定住宅约65-98㎡二至三房 致敬246位中心人物
✨项目概况✨
【总建面】:约3.1万m²
【总户数】:246户
【产权年限】:住宅70年
【物业服务】:中海物业

✨观宸246推荐理由✨
一、中建澳门 港澳精工筑造1981年在澳门注册成立,央企中国建筑唯一驻澳平台,澳门市场规模最大、品牌美誉度最好的投资建设综合企业之一,在澳门建设工程总合约额超过1000亿港元,平均每6个澳门人就有1个居住在中建澳门建设的楼宇内,平均每1平方公里的澳门土地上,就有8个中建澳门建设的项目。

二、一步澳门 一桥香港
观宸246,位居拱北口岸头排,珠澳同城核心板块,城市中心+口岸物业双极加持,近10年来距离拱北口岸、港珠澳大桥口岸最近的纯住新盘,左手澳门世界级休闲娱乐配套,右手拱北城市烟火生活,坐享醇熟配套,畅享港珠澳三城无界生活。
约1km拱北口岸约1.1km
青茂口岸约3km
港珠澳大桥珠海口岸【港珠澳大桥拱北连接线贯通后】约1.1km
珠海站,轨道出行通畅无忧

三、迎宾南路C位 近享商业醇熟配套
2km范围内富华里、摩尔广场等40+商场环绕,近千家餐饮零售,近享城市生活烟火。

四、书香文脉优学至善,省级医疗保驾护航
拱北中学(约1km)、北岭小学(约600m)等多所公立名校环绕,就近还有澳门半岛培正学校等国际学校。此外,更有三甲珠海中西结合医院(约500m)在侧,全天候保障业主健康生活。

五、稀缺精奢 高定产品立体社区园林 6大空间场景
健身公园 | 认知花园 | 萌宠乐园 |休闲吧台 | 儿童乐园 | 网红天台

现代美学风格立面
双银中空玻璃类幕墙窗设计,彰显都市生活的尊贵与高雅,确保户内景观视野最大化,节能保温的同时兼具私密性 。

超五星酒店入户礼仪
约14.6m宽入户门头,气派阔绰挑高大堂,一门到顶式通高移门,干挂石材搭配一体冲压式铝型材,历久弥新
高贵奢华入户大堂
大堂墙体普拉达绿奢石 ,质地坚硬而耐用,搭配古铜色铝板,气质高贵而典雅。
舒适雅致的多功能区
管家提供优质茶水服务,让会客访友多出一份尊崇感,多功能区提供读书、办公的便利服务,将家的功能向外延伸
酒店质感电梯厅
高挑的层高带来开阔的空间感,岩板墙面结合艺术玻璃,采用酒店级照明体系,营造酒店轻奢质感,成品型材结合隐门的设计,让空间干净且更有次序感

同步北上一线豪宅的星级地库
精致镂空格栅吊顶,搭配普拉达绿奢石材迎宾门头以及精装车库墙面,凸显业主归家的尊贵感;反射式壁灯、防滑坡道地铺、静音水篦系统等细节之处,全方位关心业主回家的体验;
空间精研 明星户型
A1户型 建面约65-67㎡ 两房两厅一卫
玄关入户,便捷收纳;约3.35米面宽客厅,约8米进深,客餐厅一体化;前沿S墙设计,预留冰箱位,空间零浪费;约3.8米面宽大主卧待飘窗

A2户型 建面约65-67㎡ 两房两厅一卫
户型方正实用,无浪费空间;约3.8m面宽,约8.1m进深客厅,客餐厅一体式;人性科学动静分区,休息待客互不打扰;约3.8m面宽主卧,主次卧带飘窗;

B户型 建面约79-81㎡ 三房两厅一卫
户型方正实用,无浪费空间;约4.55m面宽客厅空间,从容气度;人性科学动静分区,休息待客互不打扰;约3.9m大主卧带飘窗,明亮灵活;

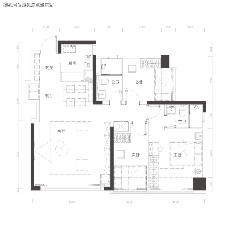
C户型 建面约95-98㎡ 三房两厅两卫
玄关入户,便捷收纳;前沿S墙设计,预留冰箱位,空间零浪费;约5m面宽超大开间,LDKG客餐厨一体化,开放式中岛台,空间开阔灵动;奢适大主卧独立卫浴,预留超大衣柜空间;

声明:本文由入驻焦点开放平台的作者撰写,除焦点官方账号外,观点仅代表作者本人,不代表焦点立场。
