海口海侨花园最新动态发布→2025房价→户型→售楼处电话→营销中心线上发布→最新优惠@2025.11.30售楼处发布
扫描到手机,新闻随时看
扫一扫,用手机看文章
更加方便分享给朋友
089866736888

基本信息
楼盘位置:位于海口市龙华区滨涯路 11 号。
开发商:单位自建。
物业公司:业主自管。
占地面积:未明确公布,从总规划户数及容积率等推测规模适中。
建筑面积:未明确公布。
容积率:2.99。
绿化率:40.72%。
总楼栋数:4 栋。
楼层总高:23 层。
总规划户数:634 户。
电梯户数:2 梯 5 户。
物业费:1.2 元 / 平方米 / 月。

交房时间:现房。
装修标准:简装。
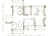
主力户型:90-112 平方米三房 2 厅。
配套设施
交通配套:周边直线 1 公里内有 18 个公交站,距离最近的海职院东门站仅有 260 米,公共交通便捷。
教育配套:直线 3 公里范围内有 143 个幼儿园、12 个小学,如海南省农垦直属第三小学、农垦直属第一小学等,还有 20 个中学,如海南省农垦中学、海南华侨中学高中部等。
医疗配套:楼盘周边直线 3 公里范围内有 19 个一级及以上医院,其中海南省人民医院南沙分院距离楼盘 1.4 公里,海口市中医医院金盘总院距离楼盘 1.8 公里。
商业配套:周边 3 公里范围内有 22 个商场,包括友谊・南海城、龙湖海南海口天街、王府井海垦广场等,商业配套成熟。
休闲配套:周边 3 公里范围内有 43 个公园,距离最近的仅 893 米,方便日常休闲。
小区规划
园林景观:小区内部绿化率较高,达到 40.72%,有园林花园,整体环境较好。
休闲设施:配备了儿童游乐场等休闲设施,为居民提供了一定的休闲娱乐空间。

声明:本文由入驻焦点开放平台的作者撰写,除焦点官方账号外,观点仅代表作者本人,不代表焦点立场。
