官网发布:陵水山海颂叠境售楼处电话是多少→开发商首页营销中心电话→楼盘测评→地址→楼盘百科→房价→户型→项目最新动态
扫描到手机,新闻随时看
扫一扫,用手机看文章
更加方便分享给朋友
089888868816
「 山海颂 | 叠境 」
坐山观海 独墅一帜

📍项目地址:
[地理位置]
【基础信息】
· 总用地面积:15.2万m²
· 总建筑面积:3.5万m²
· 建筑性质:住宅类
· 建筑结构:框架结构
· 容积率:0.22
· 总户数:155户
· 绿化率:55%
· 产权年限:70年
· 在售户型:145m²、212m²、317m²

「一半海浪 一半霓虹 」
· 湾城一体化,距繁华城央最近的湾区
· 2025年内春澜公路通车,项目可直通陵水城区,从湾区到城区生活环境一“路”切换
· 项目至陵水县城距离缩短至少6公里,至高铁站距离约7公里


· 70年产权低密度墅区,超高得房率
· 大三亚片区北纬18°热带海岸线
· 绝版山海墅作,中心可以复制,资源无可再生
· 负氧离子含量高达12,000个/cm³天然氧吧
· 花园、泳池全场景户户观海
· 因地制宜,叶脉式建筑布局依山而筑
· 75°居高俯瞰全景绝佳视角
· 山海河岛礁,五重景观体系

「匠心打造全配套 尽享精致海生活」
· 南北万豪酒店、夏日冲浪酒店
· 滨海商业街、中心区商业街
· 云水湾民宿、tang墅民宿、炜航房产营地
· 200亩国际游艇码头、海上运动基地、游艇会所、最美滨海公路

「富力湾国际游艇码头」
· 由意大利西得码集团设计,为香水湾唯一贵族游艇码头,斥资2亿打造200亩高端游艇码头规划泊位108个,360°玩转活力海世界。

「距海南海洋欢乐世界 约15KM」
· 总占地约2000亩,富力集团投资已超65亿。
· 由迪斯尼策划公司——加拿大FORREC公司担纲设计、原迪士尼《狮子王》主创打造原创IP形象,分为五大游乐区、八大动物场馆及星级酒店群,拥有40多套国际顶级游乐设施,以及1500余种4万余只海洋生物。


「距黎安国际教育创新试验区 约21KM」
· 11大自贸港重点园区之一的国家教育示范区
· 200亿教育投资的一流大学中外合作办学平台
· 30000人+国际高端人才的培养基地


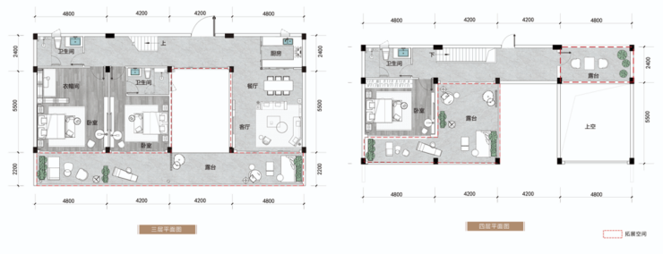
· 31栋绝版山海院墅,全球仅155席山海墅作
· 容积率≤0.22
· 使用率高达至300%
✨ 绝美港湾,百米亲海,享户户热带海
✨ 超大观海落地窗,高达至224%灵动空间
✨ 多卧室套房设计,满足全家个性定制需求
✨ 前庭后院,泳池相伴,私家山海桃源
· 看海景观图

· 花园泳池效果图

✨ 大三亚臻藏级资产,百米亲海
✨ 山海岛礁河五重绝美景观尽收眼底
✨ 多功能厅挑高6m,高达至255%灵动空间
✨ 多卧室套房设计,满足个性定制需求
✨ 前庭后院,全赠送全明灵动空间

· 观景露台

· 餐厅效果图

· 主卧效果图

· 花园景观效果图

✨ 绝美港湾,珍藏荧幕级北纬18°热带海
✨ 全景无界视野接纳山海绝美景色
✨ 挑高4.9m,高达至300%灵动空间
✨ 18m面宽,9m横厅设计,IMAX级巅峰视野
✨ 270°山海视角,18m巨幕露台,私家空中花园

· 会客厅效果图

· 娱乐室效果图

· 主卧效果图

山海颂 | 叠境 · 坐山观海
声明:本文由入驻焦点开放平台的作者撰写,除焦点官方账号外,观点仅代表作者本人,不代表焦点立场。
