三亚【金万隆商旅综合体】楼盘首页官方发布售楼处电话-➢开发商地址来电享优惠-➢2026房价
扫描到手机,新闻随时看
扫一扫,用手机看文章
更加方便分享给朋友
089888868816
金万隆商旅综合体
🏠项目地址:三亚市吉阳区荔枝沟路与师部农场路交叉口红绿灯(三亚市一中斜对面)
占地面积5000平方,土地年限至2062年10月26日
总建筑面积:13849.94平方米
可售面积4000平方;43套loft。
车位地下102个地上50个;
商业约6000平方,业态:
一楼:麦当劳,咖啡厅,百果园,奶茶店,甜品店
二楼:品牌本邦上海菜
三楼:瑜伽馆,品牌餐饮
四楼:影院足道
负一楼:超市
负二楼:地下停车场 地下102个地上50个
🎆容 积 率:2.0
🎄绿 化 率:27%
🏠楼层总高:地上4层 (loft)。
地下2层
🏠户型面积:
建筑面积:
C户型 70平方米,使用面积约112平方米
B户型 137平方米,使用面积约225平方米
A户型 140平方米,使用面积约230平方米
装修标准:毛坯
🎄产权年限:40年
👑区位优势:
① 项目地处海南国际旅游岛,海南自贸区(港)北纬18度的三亚
②与国家级湿地公园东岸湿地公园零距离接触
③项目身居三亚市中央商务区,于中央服务区、中央消费区、国际商圈、国际 社区四大区中心位置,为三亚知名的东岸CBD区域
④距三亚动车站仅5分钟车程,距三亚凤凰国际机场20分钟车程
💐配套优势:
✨周边配套✨
① 学校:三亚市一中、海南华侨中学、三亚丰和学校,双品实验学校
② 医院:解放军425医院、海南农垦医院、三亚市人民医院、三亚妇幼保健医院等
④ 生活配套:旺豪超市、美之亚超市、丹州农贸市场、金鸡岭社区农贸市场等
🍃项目景观:
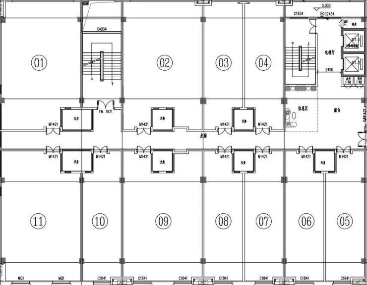
楼层户型分布图
A户型 建面 140平方 使用面积约230平方
B户型 建面 137平方 使用面积约225平方
C户型 建面 70平方 使用面积约120平方
装修效果图
声明:本文由入驻焦点开放平台的作者撰写,除焦点官方账号外,观点仅代表作者本人,不代表焦点立场。
