三亚世茂国际金融中心-项目最新情报/图文解析/楼盘详情户型图+交通+商圈配套
扫描到手机,新闻随时看
扫一扫,用手机看文章
更加方便分享给朋友
089888868816

项目概况
地理位置:位于三亚中央商务区月川单元,地处三亚河东路及迎宾路交叉口东南角。
开发商:世茂集团。
投资规模:总投资超 50 亿。
占地面积:约 5.77 万平方米。
总建筑面积:约 31.74 万平方米。
建筑密度:35%。
容积率:4.5。
绿化率:35%。
项目业态:集 5A 甲级写字楼、精品商业街、全球商业精品购物中心、自贸公馆等多种业态于一体。
产品信息
一期
1 号楼商业:建面约 145-290㎡精品商业(1-3 层),1 层挑高 6m,面积约 200-245㎡;2 层挑高 4.5m,面积约 200-280㎡;3 层挑高 4.5m,面积约 145-245㎡。建面约 33-224㎡一线临街商铺(1-5 层),1 层挑高 6 米,面积约 33-123㎡;2 层挑高 4.5 米,面积约 75-174㎡;3 层商业 + 办公挑高 4.2 米,面积约 95-587㎡;4、5 层办公挑高 4.2 米,面积约 587-601㎡。
1 号楼办公:建面约 100-306㎡云端商务智慧空间 / 总裁会客厅。4-10 层挑高 5.40m,面积约 100-150-200㎡平层办公;17、19-23 层挑高 3.55m,面积约 200-300㎡。
二期
业态:写字楼及全球商业精品购物中心。
占地:1.56 万方。
总建筑面积:8.92 万方。
总高:121 米共 23 层。
项目特色
设计理念:由国际知名建筑设计院伍兹贝格倾力打造,将滨海生态资源融入建筑,消融城市、人、自然、建筑的边界,打造全景生态美学、都芯有机商务等业态。其设计案例遍布全球,包括谷歌位于东京、中国香港、上海等地的办公空间、墨尔本澳大利亚国民银行(NAB)等。

功能定位:将导入全产业链资源,引进超 100 家战略合作企业,集四大金融总部,打造 BLOCK 商业街、总裁办公、云端会客厅等,形成集自然、商业、金融、旅游为一体的地标综合体。为国内外企业提供高质量交流合作平台,助推城市能级提升。
智慧办公:层高约 5.4m 空间,灵动演绎商务格局,为企业提供不同规格办公室、总部办公、云端会客厅等多种用途。拥有约 270° 寰宇视角,可俯瞰三亚 CBD。
配套信息
交通:坐拥迎宾路和河东路两大交通枢纽线,周边有 1 路、6 路、7 路西环、23 路、27 路、40 路、45 路、53 路、54 路等多条公交路线,可轻松到达三亚各大商圈、湾区及景区等。
餐饮:附近的高端商圈如青春颂、红树林、明珠广场、金润阳光、蓝海购物广场等,以及步行街和海旅免税城等地,都提供了丰富的餐饮业态,包括各种风味餐厅、咖啡厅和美食广场等。
娱乐:除商圈和步行街提供的购物、休闲和娱乐体验外,三亚市还有三亚湾、亚龙湾等海滩,以及各类主题公园、电影院等。
银行:周边有中国工商银行(三亚迎宾支行)、中国邮政储蓄银行(迎宾路支行)、中国建设银行(三亚月川支行)、交通银行(三亚迎宾路大道支行)等。
酒店:周边酒店资源丰富,如各类高端度假酒店、商务酒店等,可以满足不同需求的商务出差和旅游住宿。


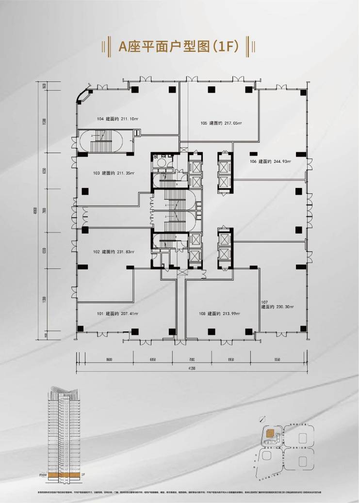
户型赏析

声明:本文由入驻焦点开放平台的作者撰写,除焦点官方账号外,观点仅代表作者本人,不代表焦点立场。
