海口同人乐府官方首页网站➢营销中心预约电话➢导航地址➢交房时间➢楼盘详情 -2026最新发布
扫描到手机,新闻随时看
扫一扫,用手机看文章
更加方便分享给朋友
089866736888
同人乐府开发商认证联系方式(2025年最新)
【海南同人乐府】

宽纳世界的健康居住理想

海口江东同人乐府・开发商价值宣言
作为省属国企山东健康集团力作,项目雄踞江东新区 CBD 南芯,总占地 253 亩,以容积率 3.03、 、绿化率 35.1% 的低密规划,打造全龄健康社区范本。承袭 “六位一体” 健康体系,融合太阳能、雨水回收等绿色技术,筑就 7 - 17 层精工洋房与小高层,户户享全明通透格局。

紧邻海南中学江东校区,配建无边泳池、主题园林等奢适配套,15 分钟直达美兰机场。依托自贸港封关红利与总部经济集聚效应,叠加人才购房补贴政策,为全球菁英提供 “教育无忧、通勤高效、生态宜居” 的理想居所。国企匠心护航,定义江东健康人居新标杆。

同人乐府是山东省属国企山东健康集团打造的高端住宅项目,目前在海口江东新区:
1. 海口江东新区同人乐府

1. 核心区位:地处海口江东新区 CBD 南片区,该区域作为海南自贸港集中展示区,汇聚了多家世界 500 强企业,区域发展潜力巨大。项目与海南中学江东校区仅一路之隔,是学校 2 公里范围内的唯一住宅新项目,教育优势极为突出。

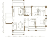
2. 项目规划:总占地约 253 亩,首推的 B1 地块规划 18 栋住宅楼与社区商业。小区容积率 2.0,为 15 - 25 层纯板式高层,户户南北通透。建筑采用公建化美学立面,以大面积玻璃与灰色铝板为基底,搭配香槟金金属腰线层等设计,风格高级。内部打造约 19000㎡全龄园林,还有超 10000㎡泛健康主题会所,配备茶室、健身房、儿童游乐场等多种功能区。

3. 主力户型与配置:户型涵盖建面约 107 - 168㎡三房至四房,部分高端户型得房率可达 89%。装修标准颇高,配备大金全屋中央空调、飞利浦智能门锁、德国博世厨房电器等知名品牌产品,还设计了全屋无主灯、一键呼叫系统等贴心细节。

4. 周边配套:直线距离约 700 米的江东天地商业综合体已进入收尾阶段;周边规划有体育馆、美术馆等配套;交通上自驾 30 分钟可达美兰机场,周边还有江东新区 1 路、2 路等公交保障出行。

4. 周边配套:教育上一路之隔是铁一中陆港中学,约 700 米处为铁一中陆港小学;医疗上距离交大一附院国际陆港医院约 900 米,就医便捷;商业方面,周边有在建的奥体商圈、万象汇等,能满足业主购物休闲需求。





声明:本文由入驻焦点开放平台的作者撰写,除焦点官方账号外,观点仅代表作者本人,不代表焦点立场。
