三亚天正·三亚湾壹号导航地址,房价,户型图,开盘时间详情,售楼处电话多少?
扫描到手机,新闻随时看
扫一扫,用手机看文章
更加方便分享给朋友
089888868816
【黄金海岸线 城心漫步三亚湾】
建面约126-213㎡奢装大平层
编辑

——项目基础信息——
开发商:三亚永基房地产开发有限公司
建筑面积:约128391m²
占地面积:56亩
绿地率:约40%
容积率:2.5
土地年限:70年
标准层高:约3.1米
规划楼栋:9栋16层-17层板楼
楼栋排布:一梯一户、两梯两户
总户数:600户
车位配比:1:1.5
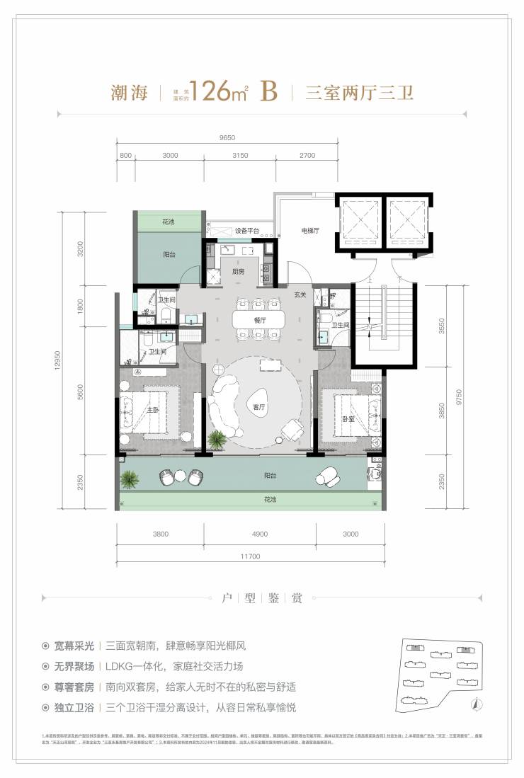
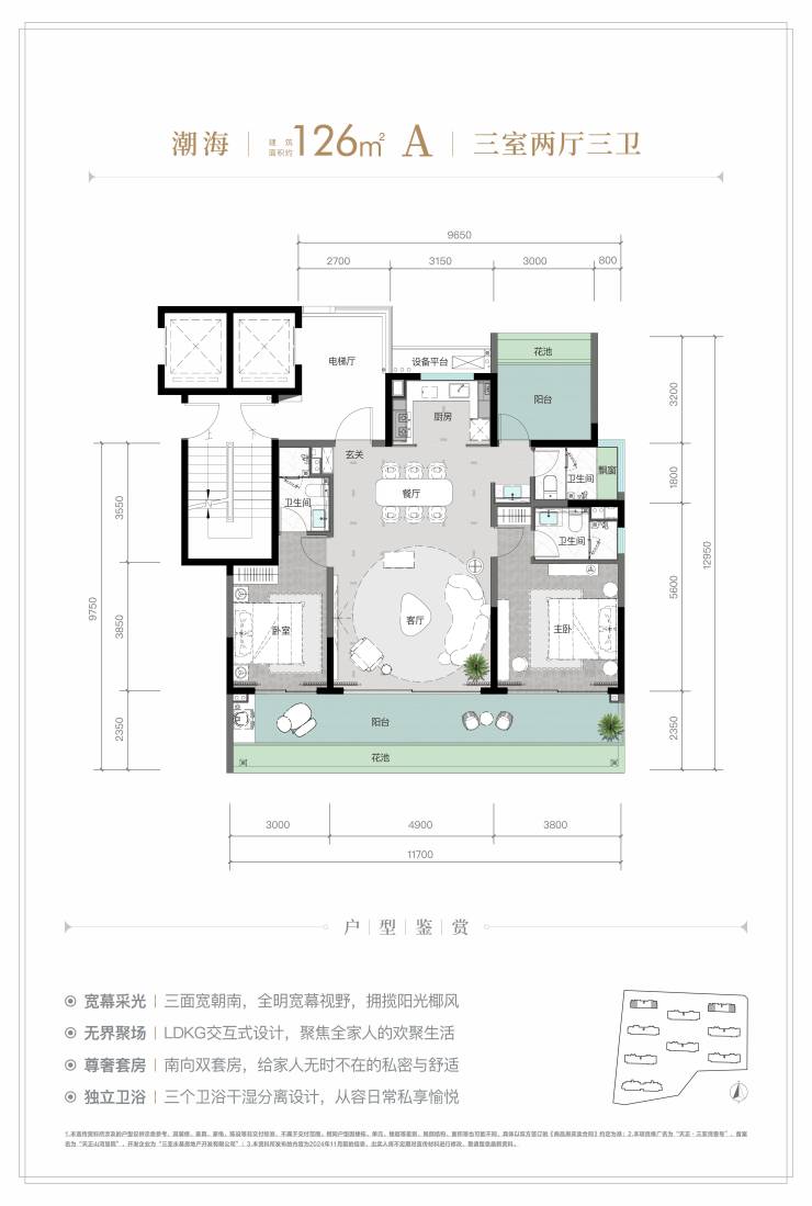
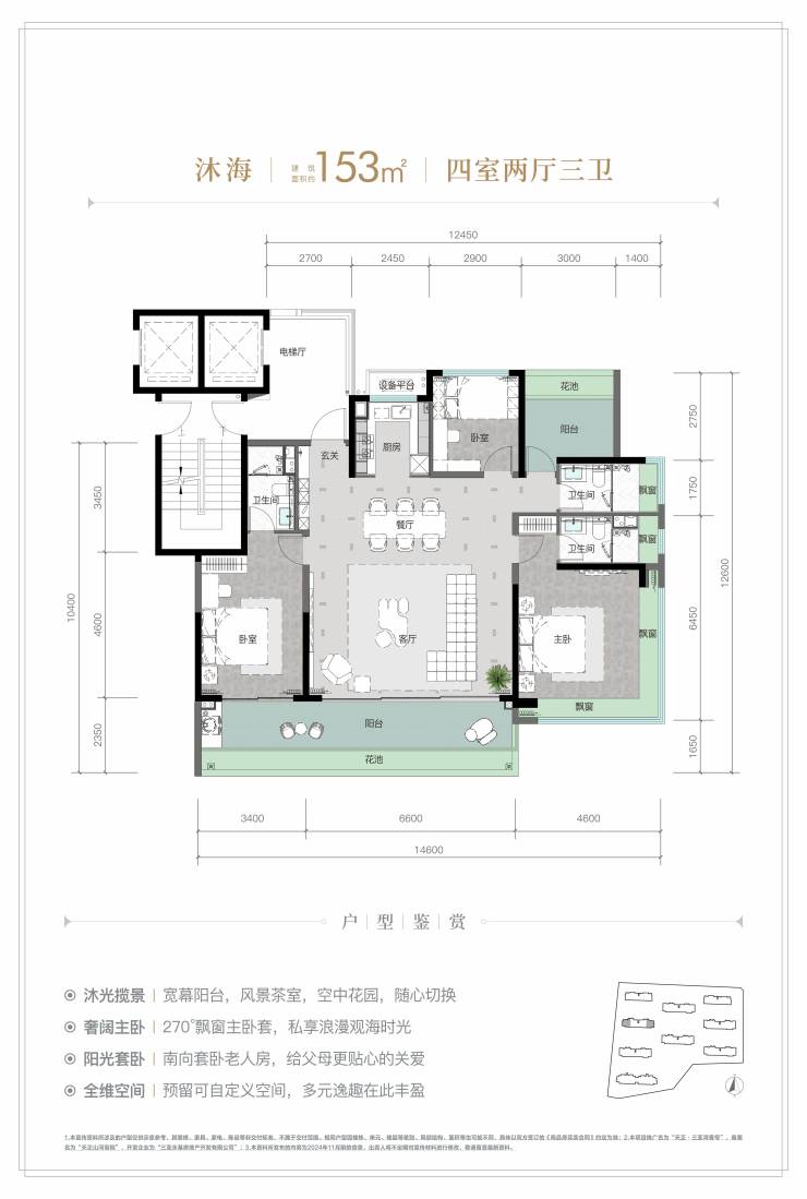
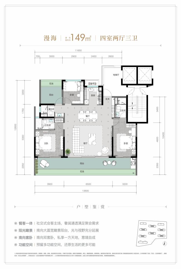
户型面积:
126㎡三室两厅三卫 | 149 ㎡四室两厅三卫
153㎡四室两厅三卫 | 177㎡四室两厅三卫
211 ㎡五室两厅三卫 | 213 ㎡五室两厅三卫
【百强天正 冠销华北】
天正地产集团,房地产开发一级资质企业,业务覆盖房地产开发、园林景观、物业服务等多个领域,产品涵盖高端改善住宅、精品公寓、商业综合体等多种物业形态,2024年荣登中国房地产百强企业榜单。(奖项来源:中指研究院)
【改善大师 五力卓著】
发轫河北,布局4省8城57盘,始终坚持以“稳健发展力、土地储备力、硬核产品力、品质交付力、精细服务力”为指引,稳居“绿档房企”,2024 年集团总投资面积约732万 m²,2023年交付5城8盘,2024年预计交付8城14盘,约22400户,总资产1800299万元,所有者权益 382519万元,货币资金262230万元(数据截止2024年9月底)。
【拓域三亚 天正得海】
2024年6月26日,天正地产集团以16.36亿斩获三亚湾优质地块,开启全国化布局的全新里程,以精端生活改善大师之名,为三亚著述住假式品质人居新答案。
三亚湾,三亚四大核心湾区之一,东起鹿回头,西至天涯海角。海岸线绵延约22公里,拥有亚洲第一椰梦长廊,是三亚开发早、城市资源配套全、商业密度高的度假湾区及老牌富人聚集地,也是全市罕有“国”字号美丽海湾,打造三亚“海上会客厅”。
天正·三亚湾壹号,步行约10分钟即达椰梦长廊,茶余饭后,近享海岸风光。
【高奢酒店集群】
康年酒店 | 国光豪生 | 君澜 | 铂尔曼 | 皇冠假日 | 喜来登 | 洲际VOCO酒店(在建中)| W酒店等十余家高端度假酒店。
【缤纷醇熟商业 】
1公里范围内:羊栏农贸市场、海之眼市集;
2公里范围内:丽禾MOHO、回辉农贸市场;
5公里范围内:龙兴海鲜广场;
8公里范围内:夏日站商业综合体、红树林度假世界、空港百货、大悦城、亿恒主题夜市。
(以上数据来源:地图导航,仅供参考)
【12年优教环伺】
三亚第九小学三亚湾校区,三亚市公立小学前列,三亚中学、上外附中(2023年最新三亚市中考各学校平均分排名第一,海棠湾的人大附中居第二)等优质教育资源。
【全维三甲医疗 】
约7公里内,享三亚主城优质医疗配套,三亚哈尔滨医科大学鸿森医院、三亚中心医院、解放军425医院等三甲医院。(以上数据来源:地图导航,仅供参考)
【与海800米的默契距离 度假即日常】
距亚洲第一大道——椰梦长廊直线约800米(数据来源地图测距,仅供参考),碧海、蓝天、银沙、阳光、椰林在此交汇,天赋异禀的原生自然风光,度假盛宴时刻上演。
【约44亩海心公园环伺】
近44亩海心公园萦绕社区,汲取热带、海洋、岛屿三大在地文化基因,营造四幕、九境景观礼序,私享公园里的热带岛屿度假风情。
【全龄段 多功能会所】
品质艺术会所,规划童趣乐园、休闲棋牌、茗香茶室、活力健身等全身心沉浸式私享场景。
【观海住假大平层 为生活高定 】
规划建筑面积约126-213㎡观海奢装大平层,约3.1米阔绰层高,部分户型创新设计270°全景飘窗主卧套、四开间朝南等,全成品高标奢装,营造全新舒居体验。
声明:本文由入驻焦点开放平台的作者撰写,除焦点官方账号外,观点仅代表作者本人,不代表焦点立场。
