官网发布海口江东梧桐里开发商官方售楼处➢营销中心预约电话多少?➢什么价格?➢2025.12.29发布更新
扫描到手机,新闻随时看
扫一扫,用手机看文章
更加方便分享给朋友
089866736888
江东・梧桐里是海口江东新区国际高教科研组团核心的标杆安居房项目,由海口产投集团与世界 500 强中交集团联袂打造。项目占地 242 亩,总建面约 60 万平方米,规划 32 栋住宅楼,将提供 4252 套 85-119㎡二至四房全装修房源,满足人才多样居住需求。

社区配套完善,自建 15 班幼儿园、1.6 万方商业街区、双泳池及老年日间照料中心等,实现全龄段生活覆盖。周边高校云集,毗邻美兰机场与高铁站,通过多条主干道快速通达全城,近享三甲医院、三大公园及在建商业综合体。作为海南规模最大安居房,项目 2025 年 6 月竣工后,将以国企品质助力自贸港人才安居。

基本信息
开发商:中交江发(海口)置业有限公司。
物业类型:住宅。
产权年限:70 年。
占地面积:约 161218.93 平方米。
建筑面积:约 60 万平方米。
容积率:2.8。
绿化率:40.1%。
车位数:3862 个(地上 186 个,地下 3676 个)。

小区规划
建筑规划:项目共规划 38 栋建筑,包含 32 栋住宅楼及 4 栋独立商业楼,整齐划一排布在方正的地块上。
内部配套:规划近 1.6 万方商业街区,打造吃喝玩乐一站式生活圈;配备 15 班幼儿园,满足孩子幼教年龄段教育需求;还设有露天双泳池、社区卫生服务中心、老年日间照料中心、业主活动中心等,满足不同年龄段业主的生活需求。
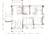
户型分析
85㎡户型:2 室 2 厅 1 卫,户型方正,布局科学合理,光线通风条件好,适合二人世界或小家庭居住。
119㎡户型:4 室 2 厅 2 卫,空间宽敞,功能分区明确,能够满足三代同堂等大家庭的居住需求。
周边配套
交通配套:东临东寨港大道,西临桂林洋大道,无缝连接江东大道、海文高速等城市交通大动脉,距离美兰机场、美兰环岛高铁站仅 7.7 公里,交通十分便利。
教育配套:项目规划配建一所 15 班幼儿园,周边 3 公里范围内有海南寰岛高级中学、塔市小学、海口桂林洋五一小学等学校,还有海南师范大学、琼台师范学院等高校,教育资源丰富。
商业配套:除了自建的近 1.6 万方商业街区外,周边还有桂林洋商圈、大学城盒子夜市、时光里・南洋街商业广场、江东天地(在建中)、高校广场(在建中)等,商业氛围浓厚。
医疗配套:附近有海南医学院第一附属医院江东院区、海南省第五人民医院江东院区、海南省中医院江东院区、海口市妇幼保健院江东分院等医疗机构,为居民的健康提供保障。
休闲配套:周边 3 公里范围内有 4 个公园,包括海口桂林洋国家热带农业公园、海口天鹅湖动物基地、芙蓉河湿地公园等,是日常休闲的好去处。

声明:本文由入驻焦点开放平台的作者撰写,除焦点官方账号外,观点仅代表作者本人,不代表焦点立场。
