陵水衡隆紫御东方售楼处位置电话→最新优惠→更新动态→2025房价→户型→配套→@2025.11.28售楼处发布
扫描到手机,新闻随时看
扫一扫,用手机看文章
更加方便分享给朋友
089888868816

🌟陵水·衡隆·紫御东方🌟
【开发商】:海南衡隆置业有限公司
【项目地址】:海南·陵水·主城心·一河两岸
【项目占地】:29411.82㎡
【总建面】:108039.34m²
【总户数】:756户
【车位】:542个
【容积率】:2.78
【绿化率】:40.3%
【楼层数】:13-14层
【产权年限】:70年住宅
【交付标准】:精装交付(含全屋定制家具+软装家具等)
【交付时间】:2025年12月
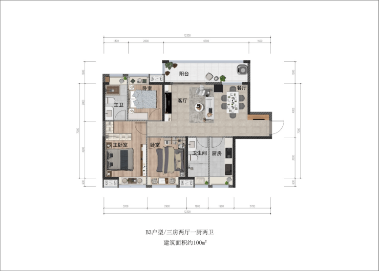
主力户型:
100㎡;三房两厅两卫
120㎡:四房两厅两卫
🔥【丰富自然旅游资源】:北纬18°以南的“珍珠海岸”陵水,“三湾三岛一山一湖”。
项目位于陵水城市中心,周边10万方商超、体育广场,文体中心、医院、星级酒店环绕,生活舒适便捷。

G98环岛高速公路 距项目车程约3分钟
陵水动车站 距项目约3.9公里,车程约5钟
三亚凤凰机场站 从陵水动车站乘高铁仅需36分钟
国家4A级清水湾旅游度假区 距项目约25km,驾车约30分钟
陵水黎安国际教育创新试验区 距项目约16km,驾车约25分钟
cdf三亚国际免税城 距项目约40km,驾车约40分钟
301解放军总医院海南医院 距项目约50km,驾车约45分钟
🤩衡隆🤩·紫御东方城市中心

🔥【红利】:12.72平方公里黎安教育产业高地,享自贸港红利。22所国内外知名高校云集,与3万+高知人群为邻。

🔥核心区位:主城生活圈,吃喝玩乐+教育医疗一站式配套。

商业配套——120000㎡商业综合体 ,缤纷配套出门即享
文化配套——五馆一中心, 海南疍家博物馆,文化体育广场,陵河湿地公园
生活配套——中心农贸市场,第二农贸市场,百家汇超市
医疗配套—— 陵水县人民医院,中医院,青岛大学附属医院海南分院
教育配套——陵水中学,中山小学,北斗小学,中央民族大学附属中、小学
🔥休闲、全龄配套:

架空层配套,
活力球场,篮球场,羽毛球场,乒乓球场等康体活动空间,以球会友




声明:本文由入驻焦点开放平台的作者撰写,除焦点官方账号外,观点仅代表作者本人,不代表焦点立场。
