官网发布:万宁兴隆依山云锦售楼处电话是多少→开发商首页营销中心电话→楼盘测评→地址→楼盘百科→房价→户型→项目最新动态
扫描到手机,新闻随时看
扫一扫,用手机看文章
更加方便分享给朋友
089888868816
—— 兴隆·依山云锦 ——
十年匠心臻品,度假康养7星品质!

◎近海揽山 ◎奢雅叠墅 ◎完备配套
◎多样臻选 ◎超值空间 ◎尊享管家
项目地址:
海南万宁 兴隆·依山云锦,十年匠心打磨,坐落于自然与人文和谐交融的兴隆华侨旅游经济区,拥抱山、海、湖、林、溪、岛6大自然稀缺资源:依山而居,享负氧离子浓度高达8万+的天然氧吧;近海而立,咫尺海南‘最美海湾’石梅湾。
重磅推出叠拼、平墅、洋房、公寓4大系列高品质户型自由选择,独享极致舒适的度假康养体验。

【效果图】
项目概况
总占地:约25716㎡
总建筑面积:约36254.91㎡
容积率:0.91
绿化率:40.38%
建筑密度:22.77%
总户数:270套
总楼栋数: 24栋
停车位:共计205停车位,包含地上车位24个,地下181个(其中普通车位181个,人防车位0个)
车位配比:约1:1
预计交付时间:2025年底

【效果图】
精致园林,绿意环绕

【效果图】
尊贵归家,全程礼遇

【效果图】
生活配套,完备齐全

【效果图】
户型鉴赏—3大系列7种高品质户型自由选择
🏡【云锦叠墅(叠拼)】 A1、A2户型
💫兼具私密性与空间感的双层空间设计
💫布局精妙,每处空间都畅享自然美景
💫尊享独一无二的墅级高品质生活体验

【效果图】
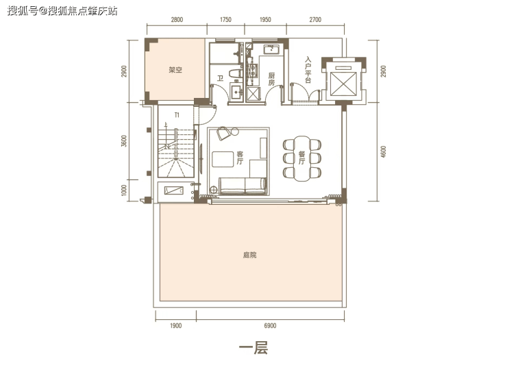
A1户型三房两厅三卫:建筑面积约116㎡


叠拼北向入户花园

声明:本文由入驻焦点开放平台的作者撰写,除焦点官方账号外,观点仅代表作者本人,不代表焦点立场。
