三亚金茂湾南繁科创中心开发商电话多少?官方首页-24小时热线电话-春节来电享优惠-最新官方发布
扫描到手机,新闻随时看
扫一扫,用手机看文章
更加方便分享给朋友
089888868816
【自贸港封关在即 2025年全球聚焦】
自贸港封关在即,海南将成为世界最大的自由贸易港。作为中央亲自部署,高度关注的国家战略之地,自贸港未来政策或将优于香港、新加坡等全球重要贸易中心。多项利好政策落地,打造面向全球拓展的企业资金池。

【投资自贸港 首选崖州湾】
崖州湾科技城,作为全省十三大重点园区之一,聚集海(深海开发)、陆(南繁产业)两大国家级战略产业。经过5年高速发展,截至2024年6月,已汇聚34个省部级及以上科创平台,高层次人才突破2000人,入驻企业超过万家,累计营收接近千亿元。


【央企金茂 品质筑造恒产】
中国金茂作为世界五百强央企单位,持续打造高标准品质建筑。继上海金茂大厦、雄安中国中化大厦、北京凯晨中心等地标后,在崖州湾科技城核心打造的南繁科创中心,依托两大国家战略,成为自贸港背景下的恒级资产。

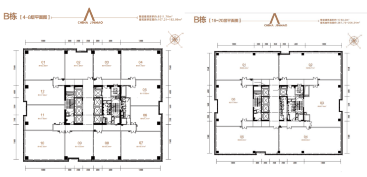
南繁科创中心位于南繁科技城核心,是国家南繁硅谷顶级教育、医疗、商业、休闲、居住配套均落地后,重点打造的总部商办资产。
占地面积:36732.67㎡
地上建筑面积:写字楼业态74608.28㎡
规划楼层:A栋B栋楼各23层
层高设计:9.8米挑高大堂,首层层高5.6m,标准层高4.2m,最高层高5.1m,楼栋总高度108.65米
产权年限:40年
交付时间:2024年8月30日
总户数:291户(其中写字楼274户,商铺17户)
可用车位数:机动车位共计1484个,地上147个,地下1337个
得房率:写字楼约75%
绿化率:25.01%
企业未来总部 世界恒级资产
【景观享受】
距海仅约2.5公里,奢享约16公里黄金海岸线,自贸港不可多得瞰海总部。现代化品质打造,绿色园林环境,更高端的办公新体验。

【配套齐全】
1公里范围内,汇集教育、医疗、商业、娱乐等多项功能,满足未来生活、办公一切所需。

【交通便利】
紧邻G98高速,距崖州动车站2.3公里,距凤凰机场25公里。临近南山港、中心渔港双港口。

【产业集聚】
定向引入生物科技、育种、进出口、大数据、人工智能、产业金融、数字产业等领域的全球总部企业。目前,先正达(中国)作为中国最大、全球第三大种业龙头已抢先进驻。

【智能体系】
IBMS智能建筑集成管理中控系统,十大智能体系加成,全楼监控覆盖、门禁管理系统、人脸识别道闸系统、访客管理系统、联动派梯系统、入侵报警系统、电子巡查系统、双回路供电、高低压电梯、智能停车管理系统。

【高端服务】
金茂服务在全国多个核心城市管理大量全委写字楼项目,业务范围遍及全国43个城市,管理面积逾2000万㎡,在管项目荣获“国家三星级绿色建筑标识认证”、“LEED-EB铂金级”认证、“全国物业管理示范大厦” 等荣誉。

【灵活功能】
室内空间灵活组合,满足企业展示、科研展览、实验室研发、商务办公、会议会务全方位需求
【绿色节能】
全幕墙打造生态立面,大面积使用双层中空LOW-E高透光玻璃,内部实现集中供能、最大限度地节省能耗和日常运行维护管理费用。

作为三亚市区热销写字楼产品,目前特惠房源在售,入驻海南,优选南繁。

声明:本文由入驻焦点开放平台的作者撰写,除焦点官方账号外,观点仅代表作者本人,不代表焦点立场。
