陵水雅居乐清水湾蔚蓝小院开发商售楼处➢营销中心电话➢2025.12.30更新
扫描到手机,新闻随时看
扫一扫,用手机看文章
更加方便分享给朋友
089888868816

开发商:海南雅居乐房地产开发有限公司
物业公司:海南雅居乐物业服务有限公司
项目地址:海南雅居乐清水湾旅游度假区
项目占地面积:约1.5万亩
销售中心地址:
[地理位置]
——————【蔚蓝小院】区位——————
1、项目总规图(红色圈为“蔚蓝小院”):

2、“蔚蓝小院”总规图(在售房源点位):

—————【蔚蓝小院】基础信息—————
【组团用地面积】:84998.5㎡
【组团建筑面积】:28017.32 ㎡
【组团总容积率】:0.33
【组团总绿化率】:36%
【物业费】:5.8元/㎡
【产权年限】:70年
【楼栋数】:125栋
【总户数】:仅250席的(合院162户,联排88户)清水湾院墅之作,多数人看见,少数人拥有
【交付标准】:简装交付
【车位数量】:250个
【产品面积段】:
灵巧合院:建面约103㎡-106㎡
联排邻里墅:建面约102-139㎡(新推售)
【蔚蓝小院价值点】
✅醇熟墅区,尽享百亿度假生活配套
「蔚蓝小院」位于雅居乐清水湾蔚蓝高尔夫组团,雄踞湾区醇熟生活圈,周边清水湾36洞自营高尔夫球会、乌兰假日酒店、双语学校、衡石精英中学、威德国际幼儿园、南果市场、英州农贸市场、珊瑚汇商业中心等全维度假生活配套环绕,生活便利。




✅黄金交通路网,畅达全岛,接轨国际资源
东部与清水湾大道接壤、南边紧挨福清大道,距离G98环岛高速直线距离仅3公里,交通四通八达,出行便利;链接海棠湾千亿级度假配套,接轨全球资源。

✅清水湾最后的静谧纯墅区
蔚蓝小院是清水湾最后的纯地上两层墅区项目,超低容积率,居住舒适度极高。
南向采光及通风性好,又独门独院、前庭后院,绿荫环绕,是滨海社区里不可多得的静谧之所。

✅小户型大享受,超高得房率
蔚蓝小院合院&联排邻里墅均有天有地有院子,可三代同堂、四代为邻,亲密有度。
合院:建面约103-106平,但实际得房率最高可达约138%,小面积,大赠送,性价比极高。
联排:建面约102-139平,庭院空间更大,得房率最高可达约160%,GN户型、HN户型随意组合,度假生活更自在。
1️⃣HN+GN,合二为一可满足老中青三代同堂,亲密有度又互不干扰。
2️⃣HN+GN+GN+HN,合四为一,可四代为邻,中青老各享独立空间,可独自居住、独立招待又可互相照应。

✅低总价上车,超高性价比
对比整个清水湾别墅产品,蔚蓝小院面积小、总价低,是上车清水湾别墅产品不可多得的选择。

—【蔚蓝小院】户型及美图鉴赏—
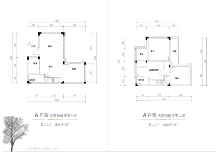
1、【A户型合院】


2、【B1户型合院】


3、【B2户型合院】


4、【HN户型联排】


5、【GN户型联排】


【合院】样板间美图




声明:本文由入驻焦点开放平台的作者撰写,除焦点官方账号外,观点仅代表作者本人,不代表焦点立场。
