乐东九所泊云@首页网站_售楼处电话_2025项目最新动态开发商是谁?_什么价格_位置怎么样?
扫描到手机,新闻随时看
扫一扫,用手机看文章
更加方便分享给朋友
089866736888
海南-九所泊云
一池汤泉 一宅天地
🏰开发商:海南云海恒源房地产开发有限公司
⛳总占地面积:26600㎡;
🌇总建筑面积约:33600㎡;
🌴容积率:1.25;
🍃绿化率:33%;
🏨土地性质:五十年商住用地;
🏢总套数:448户;
🔑交房时间:现房/2023年3月31日;
🏊小区配套:泳池、温泉泡池、健身房、瑜伽室、餐厅、活动中心;
🏫在售房源:59-61㎡、73㎡独立商业体、103-105㎡阔景美宅;
👑项目签约“华美达安可”酒店管理服务,所属温德姆酒店集团居全球酒店排名第五位,泊云业主可自由选择成为世界500强房东,享国际星级酒店品质服务同时,得股东分红收益。贴心管家式服务、商务中心、度假管家服务轻松享受以五星级酒店待客之道服务于日常。
🌈项目周边以全方位立体交通网络,全岛贯通、通达全国。
🚄紧邻环岛高铁,坐拥西环高铁乐东站
🚗毗邻环岛高速及两条中线高速
🚅乐东至三亚凤凰机场最快26分钟到达,至海口最快2小时到达
🌇周边配套设施:高铁站、幼儿园、中学、医院、高铁站、超市、银行、市场等

🏨中兴生态智慧港为海南省重点项目,以节能环保产业、新一代信息技术产业为核心,引进中兴集团自身产业链上下游企业和配套企业,以及其他关联的战略性新兴产业及其上下游企业。助力海南不断打造新的经济增长点和新的发展方式,推动海南科学发展、绿色崛起的步伐,实现经济社会持续健康发展。
🌊距海边直线距离5公里
🌴【九所泊云电商综合体——鸟瞰图】🌴

🌴【九所泊云电商综合体——效果图】🌴

🌴【九所泊云电商综合体——实景图】🌴
🌴【户型图:建筑面积约59-61㎡
🌴【户型图:建筑面积约73㎡】🌴



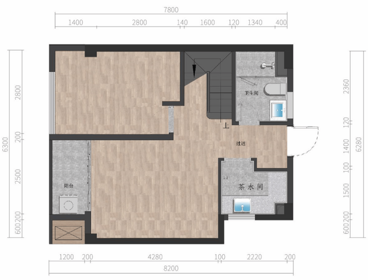
🌴【阔境美宅:三室两厅两卫 建面约103-105㎡】




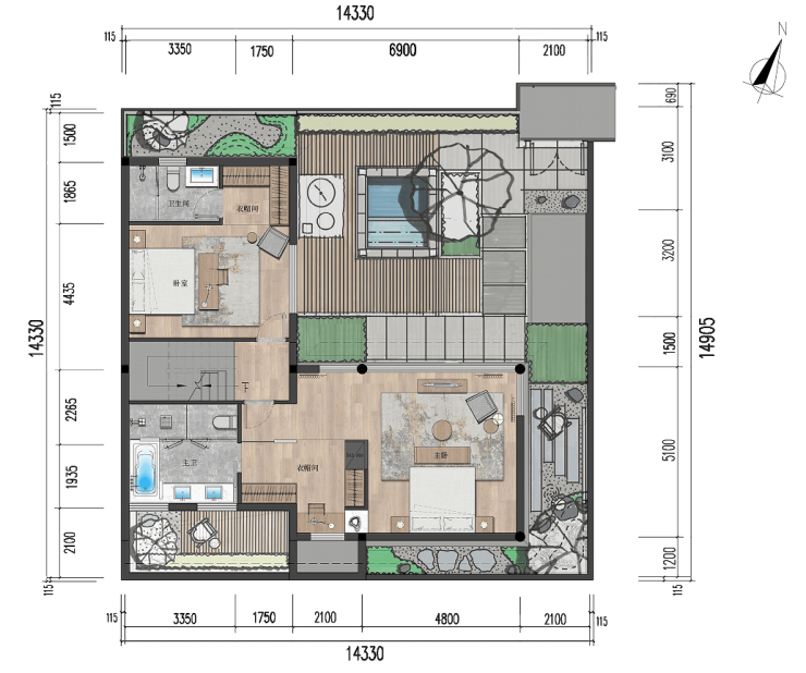
🌴【独栋小院:三室两厅四卫 建面约97㎡】


声明:本文由入驻焦点开放平台的作者撰写,除焦点官方账号外,观点仅代表作者本人,不代表焦点立场。
