【官方】海口新埠岛碧桂园中央半岛逸璟台售楼处最新发布•优惠•百度热搜•动态•户型•位置•容积率•售楼处座机电话•海南最新房产排行
扫描到手机,新闻随时看
扫一扫,用手机看文章
更加方便分享给朋友
089866736888
售楼处电话0898-66599665【售楼中心】【已认证】
营销中心电话0898-66599665【营销中心】【已认证】
开发商营销中心-----欢迎来电预约尊享折扣-----恭迎品鉴
碧桂园中央半岛逸璟台
中央半岛
基 本 资 料
占地面积:约96029㎡
总建筑面积:约58376.73㎡
绿地率: 约45%
容积率:约0.45
建筑密度:约16.07%
车位数量:372个
产权年限:70年 (截止2077年9月11日)
总户数:220套
物业费:4.8元/㎡/月
水电费:水费3.14元/吨,电费0.6295元/度
(该单位交付后所产生的物业管理费、水电费等费用,由产权所有人承担。)
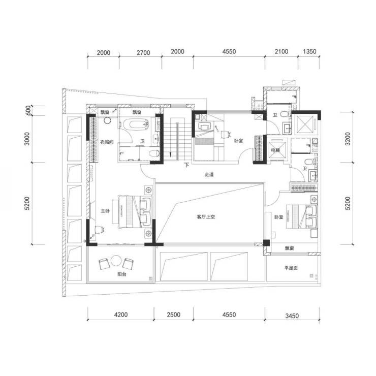
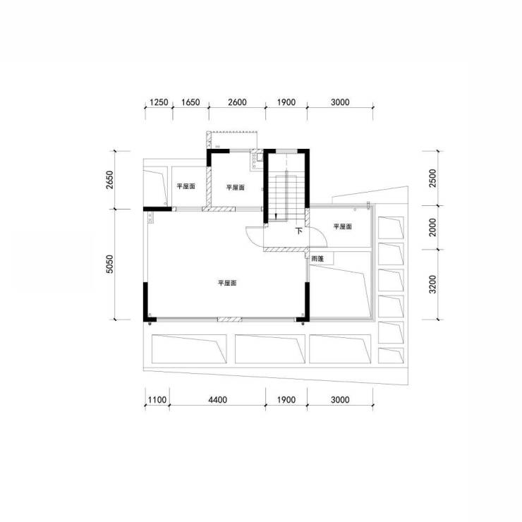
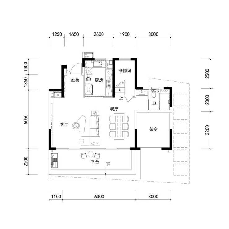
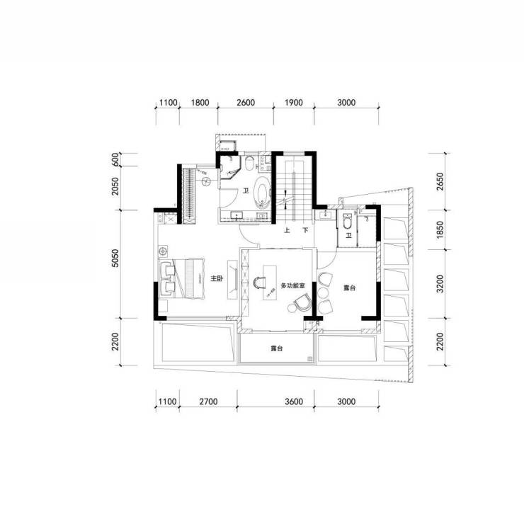
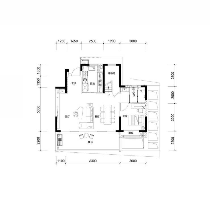
户 型 资 料
一层平面图布置
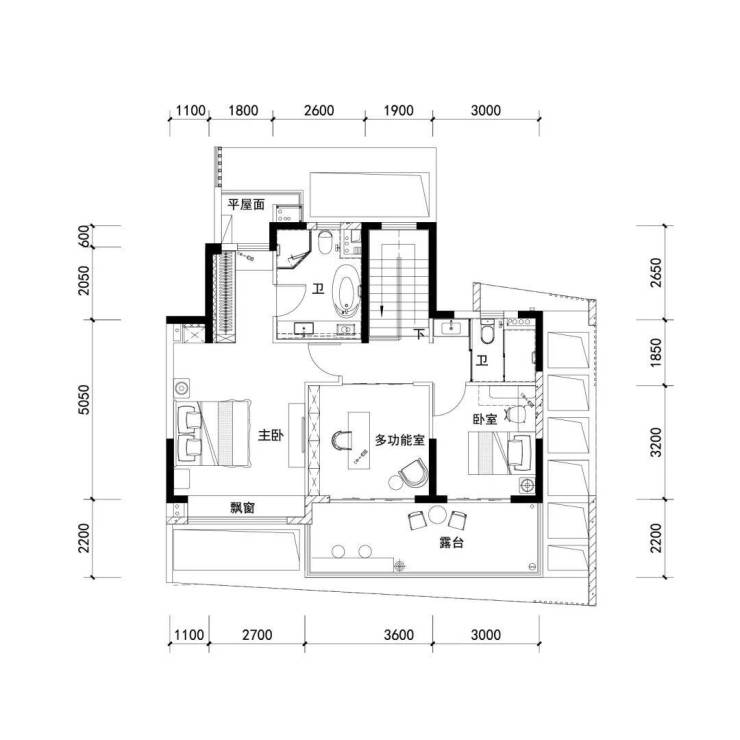
二层平面图布置
三层平面图布置
四层平面图布置
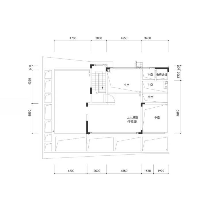
屋顶平面图布置
一层平面图布置
二层平面图布置
三层平面图布置
四层平面图布置
屋顶平面图布置
外立面示意图鉴赏
示范区实景鉴赏
项 目 价 值
碧桂园中央半岛位于海南省海口市新埠岛北端,北望琼州海峡,三面环江,一面临海,有丰富的江、海、湾景观资源。项目整盘规划,潜心打造七大生态都市系统,共计开发44个苑区(部分规划中),截止2024年已交付18个苑区,交付逾8000户房屋。“拾贝”销售中心及“拾贝”公园,为海口热门打卡目的地。
项目地址:海口市美兰区新埠岛新埠大道北端
占地面积:约5500亩
规划产品:涵盖高层住宅、商业、写字楼、低密住宅
碧桂园中央半岛 鸟瞰效果图
区位价值
项目与海南自贸港建设先行区——江东新区仅一桥之隔。
尽揽环岛高铁/高速、美兰国际机场、省会酒店、医疗、教育、公园、游艇休闲、商业荟萃。
三座大桥直通现代商圈。以城市万象之繁华,融一岛璀璨绽放。
规划价值
/ 新埠岛控规 国际化发展加速度 /
2019年7月海口市自然资源和规划局公布了新埠岛控制性详细规划(修编),未来规划新埠岛将增加1条环岛干道、2座桥和4条跨河越江通道,形成与海甸岛、中心城区一体化路网格局。(信息来源:南国都市报)
配套价值
Supporting facilities
/ 尊贵礼遇 3大品牌酒店 /
星海湾铂尔曼酒店、诺富特酒店、品牌酒店(规划中),打造尊贵海上会客厅
诺富特酒店(实景图)
铂尔曼酒店(实景图)
/ 天赋胜景 四园一带自然大境 /
约12公里纯净海岸线,写意海上宽屏生活。
七色岛儿童公园、圣托里海湾公园、碧海银滩公园、拾贝公园(建设中)、约3km滨海休闲带,打造城市生态之岛,悠享惬意富氧大境。
拾贝公园(实景图)
碧海银滩公园(实景图)
约3km滨海休闲带(实景图)
/ 万象缤纷 4大精品商业街 /
南海旺角、星海湾风情商业街、迈阿密滨海商业街、滨海商业街(建设中),带来同步国际的潮流与时尚,精彩丰盛多元业态,满足衣食住行娱乐购生活需求。
南海旺角(实景图)
星海湾风情商业街(实景图)
迈阿密滨海商业街(实景图)
售楼处电话0898-66599665【售楼中心】【已认证】
营销中心电话0898-66599665【营销中心】【已认证】
开发商营销中心-----欢迎来电预约尊享折扣-----恭迎品鉴
声明:本文由入驻焦点开放平台的作者撰写,除焦点官方账号外,观点仅代表作者本人,不代表焦点立场。
