佛山望德8号@首页网站_售楼处电话_2025项目最新动态开发商是谁?_什么价格_位置怎么样?

搜狐焦点北海站 2025-10-05 08:18:00
用手机看
扫描到手机,新闻随时看

扫一扫,用手机看文章
更加方便分享给朋友

佛山望德8号售楼处电话0757-83879331【售楼中心】【已认证】位于城市中心,背靠佛山万亿级市场,拥有顶级豪宅和绝版景观。项目距离禅桂都市圈约2小时通达大湾区,周边有15分钟禅桂都市圈约2小时通达大湾区,便捷的路网和优质教育资源丰富。

075787736888

【佛山望德8号】

售楼处电话0757-83879331【售楼中心】【已认证】

营销中心电话0757-83879331【营销中心】【已认证】

开发商营销中心-----欢迎来电预约尊享折扣-----恭迎品鉴

【望德8号】佛山首个成长型Plus追光社区建筑面积约87-117㎡城市【city】三龙湾芯 臻贵滨水宜居国际住区

【顶尖高知圈层】三龙湾定位国际滨水宜居社区,佛山第三富人区,背靠佛山万亿级市场,集合了高端创新、产城融合、广佛极点等重大发展红利,区域活力非常强劲,而奇槎是禅唯一纳入三龙湾的板块,也是被定义为禅城第三富人区。

【豪宅板块】板块内齐聚鹏瑞三龙湾 1号、保利和悦滨江等一线豪宅,据统计,2024 年上半年鹏瑞三龙湾1号网签成交均价 54458 元/㎡,保利和悦滨江 6月份挂盘价 38395元/㎡。(数据来源:克而瑞、贝壳找房)

【绝版景观】一河两岸 极致景观

超10公里东平河环绕:纵览全球,每座城市都有一条代表城市荣耀的伟大河流,承载着城市的价值巅峰。譬如黄埔江之于上海,珠江之于广州……在佛山,贯穿主城的东平河,就是代表佛山走向世界的名片

约32万㎡半月岛湿地公园:网红打卡点 佛山“小垦丁”

【约15分钟禅桂都市圈约2小时通达大湾区】

便捷路网,通行广佛。佛山2号线,实现6站直达广州南站;佛山6号线(规划中)设点奇槎站,未来无缝对接广州2号线以及滘口客运站

【山姆】佛山第二家山姆会员店正式落户,距离项目约1公里就是佛山第二家山姆会员店,预计2026年开业

禅城山姆会员店效果图

【教育】CAMPUS 禅桂名校圈 目送式教育 12年一站式成长护航

3 公里内享受一站式教育配套,家门口即三龙湾小学(第一梯队)、英国 LEH 国际学校,与国际教育接轨,明珠幼儿园、惠景中学(市一级学校)、市属华英学校(广东省一级学校)、佛山实验学校(广东省-级学校)等,让孩子赢在起跑线;

2024年佛山实验小学部就近入学片区中签率为17%,2023年华英学校就近入学片区中签率约21%【社区】COMMUNTY 四重归家礼序 彰显新贵尊崇

望族奢境,府藏天地,从佛山的岭南古韵吸取灵感,以多种岭南古韵的特色元素,四方门、屏风、漏窗、花墙、满洲窗等细节元素融合新工艺经过二次设计后融合景观设计尊崇归家动线

【成长】CHILDREN 专属儿童空间 全龄游乐场域

社区架空层打造儿童空间,绘本阅读/做作业/玩要游戏,结识更多童年玩伴,充满快乐的童年星光

景观公区及儿童游戏区打造“漫研space系统”,分龄玩乐系统及寓教于乐的植物研学小径,陪伴成长时光0-3岁 小小童乐园 沙池、滑梯等适合小小孩的玩乐设施

6-12岁 小少年俱乐部 跳绳踢毽、滑板练习等场地

【魔方家】CUBE 会生长的“房子”

【魔方90】最懂佛山人的97㎡ 佛山首创! 4+1户型

尊崇观江主卧套房:约3.4米奢适面宽,风光铺陈于眼前成长型可变儿童房1+1>2灵动空间满足一孩、二孩不同成长阶段需求

客厅阳台无界延伸江景阳光茶室,惬意的独处时光

玄关储藏室 可以泊车的储藏室,让家庭收纳轻松有序

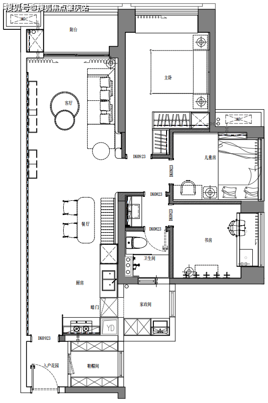
97㎡户型图

魔方90 Plus】一步到位的117㎡ 人生进阶版理想居所

多功能入户花园,定制仪式感空间

四开间朝南,宽幕 PLUS 采光视野

方正格局,南北通透,双向对流

约 6m 面宽阔景阳台,江景一览无余双镜面阳台

【87㎡】户型图

● 动静分区合理,人性布局自然从容

● 餐客厅一体,连接园景阳台视野朗阔

● 明厨明卫,生活干净利落

【准现房】CONFRM-所见所得 落户学位立享所有楼栋均已建成封顶,实景呈现,所见所得,好房无需等待

【项目概况】

望德8号,禅桂之芯江园双萃,学府成长社区。地处佛山第三富人区,三龙湾宜居滨水国际社区,坐拥10公里东平河极致景观,约32万㎡半月岛湿地公园,名校林立,享12年一站式教育,匠心设计打造佛山首创追光社区,以6C理念,营造三龙湾板块高知人文成长住区。

【基础信息】

占地面积:5.5万㎡计容面积:26万㎡产品信息:87-117㎡三至四房社区配套:泛架空层设计(儿童空间、游戏区、邻里会客厅等)物业管理:世茂服务,2.75元/㎡

【周边配套】

交通配套:双大桥(奇龙大桥、佛陈大桥)、佛山2号线湾华站(已开通)和规划6号线的奇槎站教育配套:按2024年最新招生方案,项目所在依云社区分配到三龙湾小学以及惠景中学,更可以参与华英以及佛实的摇号!享受佛山第一梯队教育资源;实际入学情况以教育部公告为准繁华商圈:金铂中心、三龙湾1号湾汇(在建中)、佛山山姆禅城奇槎店(预计2026开业)

(本资料包内所有资料包括但不限于文字、数据、地图、图表等仅供参考之用,并不构成要约、承诺或保证,仅为过程示意资料,本公司保留对宣传资料修改的权利,敬请留意最新资料。)

售楼处电话0757-83879331【售楼中心】【已认证】

营销中心电话0757-83879331【营销中心】【已认证】

开发商营销中心-----欢迎来电预约尊享折扣-----恭迎品鉴

声明:本文由入驻焦点开放平台的作者撰写,除焦点官方账号外,观点仅代表作者本人,不代表焦点立场。